- A5
- A6
- A7
- A8
Introduction of Straddle Carrier
Engineered for precision and built for endurance, our Straddle Carrier redefines efficiency in port and intermodal yard operations. It seamlessly integrates the high-lift capability of a gantry with the mobility of a terminal truck, offering a superior solution for transporting containers over short to medium distances.
Features of Straddle Carrier
Core Engineering & Operational Advantages:
Unibody Main Beam Construction: The primary U-frame and supporting beams are fabricated as a single, unified structure using advanced manufacturing techniques. This monolithic design eliminates weak points associated with traditional welding, resulting in a significantly lighter deadweight without compromising strength. The outcome is enhanced vertical and horizontal rigidity, leading to reduced wheel load and greater long-term stability.
Precision Drive & End Carriage System: Each end carriage is equipped with an integrated motor-reducer-wheel drive train. The system incorporates soft-start technology, which gradually applies power to eliminate jarring movements. This ensures exceptionally smooth acceleration and deceleration, protecting both the cargo and the equipment from stress.
Advanced Thermal Management: Operating in harsh environments demands resilience. The underside of the main beam is protected with a specialized heat-resistant coating. This thermal-protective layer shields critical structural components from radiant heat, ensuring consistent performance and material integrity.
Intelligent Control & Diagnostics: The electrical system is built with globally recognized components from Siemens or Schneider. Central to its operation are an industrial-grade PLC (Programmable Logic Controller) and variable frequency drives (Inverters) for precise motor control. A comprehensive Condition Monitoring and Management System (CMMS) provides real-time diagnostics, alerting operators to potential issues before they lead to downtime.
Modular Spreader for Maximum Versatility: The standard spreader is configured to securely handle 20ft, 40ft, and 45ft ISO containers. Furthermore, we specialize in engineering custom, non-standard spreaders to meet unique operational layouts and specialized cargo requirements.

Key Component Highlights:
Heavy-Duty Rubber Tires: Manufactured from premium, abrasion-resistant compounds for extended service life. A integrated tyre protection device helps prevent damage, while the design allows for a tight turning radius in confined spaces.
Redundant-Hook Spreader System: The lifting mechanism employs a master link with a four-leg wire rope sling, creating a balanced and secure lift. The control system allows for fine adjustments, ensuring containers are locked safely and stably before movement.
Ergonomic Operator Cabin: Designed for productivity and comfort, the cabin offers a 360-degree panoramic view. It is fully climate-controlled with an integrated air conditioner and features an intuitively arranged control console to reduce operator fatigue.
High-Performance Trolley & Hoist: The winch trolley assembly ensures smooth traversal along the beam without rail gnawing. Engineered for low operational noise and unwavering reliability, it guarantees precise container positioning every time.
Inherent Design Benefits:
Structural Longevity & Low Maintenance: The combination of robust design, high-quality automatic welding, and mandatory Non-Destructive Testing (NDT) at critical points ensures a long operational lifespan with minimal maintenance requirements.
Superior Environmental Adaptation: The straddle-type design allows the carrier to navigate freely between different yard sections, adapting effortlessly to complex and congested operational layouts.
Optimized for Container Logistics: From its rigid frame to its intelligent spreader, every component is purpose-built for the demanding cycle of container lifting, transport, and stacking.
Optional Customizations:
We understand that no two operations are identical. Our carriers can be tailored with specific features, including different insulation classes (e.g., IP54/44, Class F), and are designed in close collaboration with you to meet exact site-specific demands.
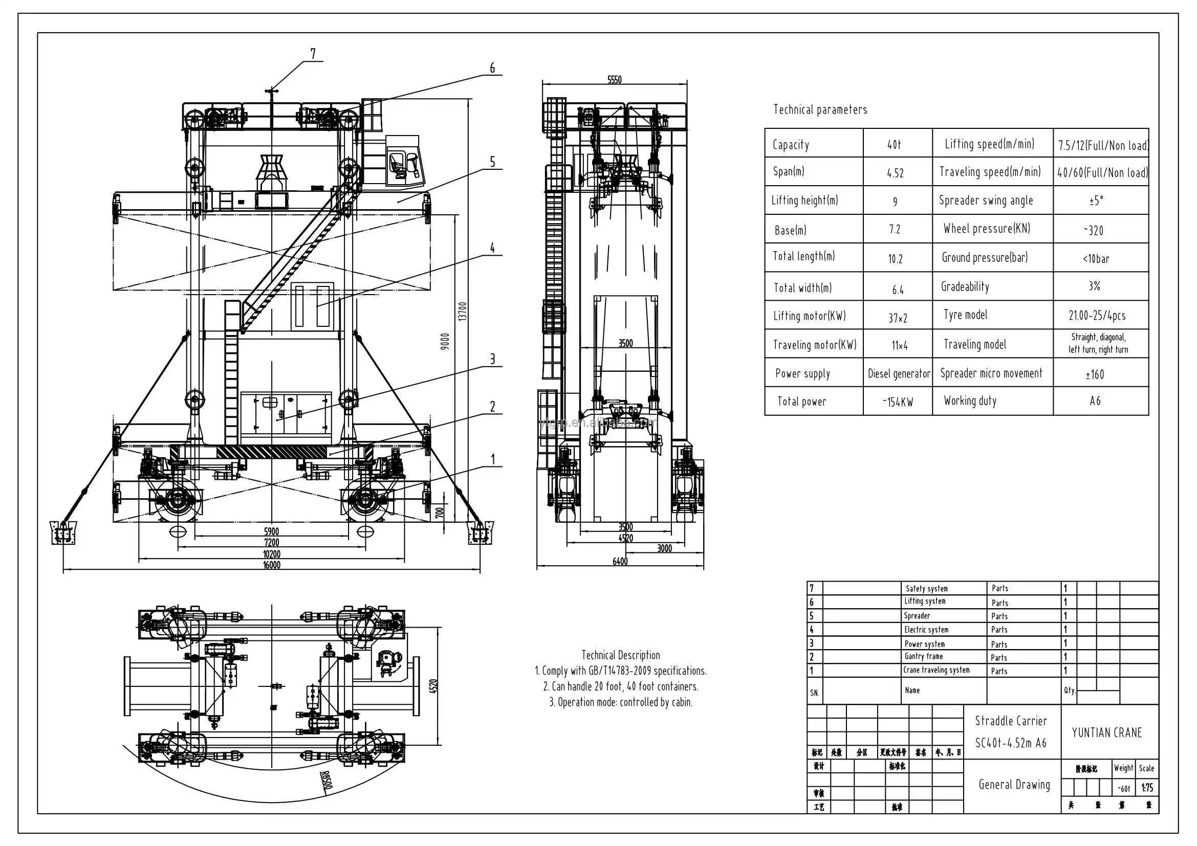
Technical Parameters of Straddle Carrier

Applications of Straddle Carrier
Beyond being a mere transport vehicle, the Straddle Carrier serves as a mobile, high-density storage solution that revolutionizes material flow in demanding industrial environments. By merging the stacking height of a fixed gantry with the free-roaming capability of a truck, it creates a paradigm of efficiency in space-constrained and high-throughput operations.
Primary Operational Environments:
Seaport and Intermodal Terminal Agility: In the fast-paced world of seaports, our Straddle Carrier acts as the critical link between vessel berths and container storage blocks. Its design allows it to directly receive containers from ship-to-shore cranes and transport them to their stacking positions without requiring multiple transfer machines. This "first-lift" capability streamlines the entire vessel turnaround process, significantly reducing port stay times for cargo ships.
High-Density Container Stacking and Storage: The carrier's ability to stack containers multiple units high, while simultaneously moving through the yard, is its defining advantage. This maximizes the utility of every square meter of your storage yard. The hydraulic lifting system provides the controlled power needed for precise positioning, enabling organized blocks that simplify inventory management and expedite the retrieval process for outbound trucks and trains.
Rail Terminal Interchange Operations: At railheads and intermodal yards, the Straddle Carrier excels at cross-docking containers between trains and trucks. Its wide straddle clearance allows it to move directly over rail cars and road chassis, facilitating a direct transfer that minimizes handling steps. This seamless transition is vital for maintaining schedule integrity in complex supply chains.
Heavy-Duty Industrial and Distribution Complexes: Beyond standard shipping containers, these carriers are adept at handling oversized and heavy loads like prefabricated building materials, large machinery components, and bulk commodities in specialized boxes. Their customizable spreaders and robust frames make them ideal for steel mills, large-scale manufacturing plants, and logistics hubs that manage diverse, high-tonnage goods.
Strategic Advantages in Practice:
Enhanced Ground Space Utilization: By stacking containers and moving over the top of stored cargo, the Straddle Carrier eliminates the need for wide aisles required by conventional forklifts and sideloaders. This leads to a dramatic increase in storage density, often by 40% or more, making it a financially and spatially smart choice for expensive industrial real estate.
Uninterrupted Workflow in Congested Areas: The machine's compact turning radius and omnidirectional movement allow it to operate effectively in crowded yards. It can continue working even when other equipment is blocked, ensuring that key logistics processes like loading and train stripping (unloading) are not delayed.
Improved Safety and Cargo Integrity: Operators benefit from an elevated, panoramic cabin that provides clear sightlines of the load and its surroundings. Combined with stable, soft-start hydraulic movements, this minimizes the risk of collisions, load sway, and damage to both the cargo and the infrastructure, creating a inherently safer worksite.
Supporting Sustainable Operations: Modern Straddle Carriers can be configured with energy-recovery systems, efficient electric drives, and emission control technologies. This reduces their carbon footprint and noise pollution, aligning with the environmental goals of modern ports and industrial facilities, particularly those in or near urban areas.
In essence, the Straddle Carrier is the cornerstone of a fluid and responsive logistics operation. It is the strategic answer for any enterprise seeking to accelerate throughput, conquer spatial limitations, and build a more resilient and adaptable supply chain.







